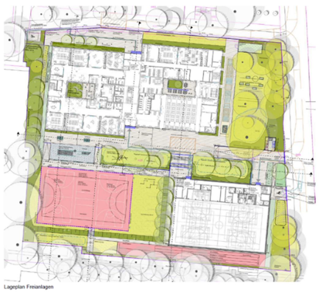
Bei meinem Nachbarschaftstreffen habe ich Ihnen zugesagt, die Detailplanung für den Schulbau in unserem Quartierspark zur Verfügung zu stellen. Sie können nun sehen, dass möglichst viele der bestehenden Bäume erhalten bleiben sollen – das war mir ein wichtiges Anliegen.
Ich freue mich, dass mein Druck zur schnellen Herrichtung einer Ersatzfläche Wirkung gezeigt hat. Die Arbeiten auf der südöstlichen Ersatzfläche haben bereits begonnen: Die ersten Geräte des Trimm-dich-Pfads sind abgebaut und umgesetzt. Neben neuen Wegen, die künftig unfallfrei genutzt werden können, wird es auch weitere Sitzmöglichkeiten geben.
Im Rahmen der Berliner Schulbauoffensive errichtet die HOWOGE bis zum dritten Quartal 2027 eine Grundschule in Holzbauweise mit rund 430 Schulplätzen, einer Turnhalle und einem Sportplatz. Besonders wichtig ist mir, dass die Flächen auch nach den Schulzeiten für uns Anwohnerinnen und Anwohner nutzbar bleiben.

Empfehlen Sie uns!